Unità Abitative nel Parco
Scopri la bellezza di Parco Clarisse, un residence di prestigio nel centro di Castelfranco Veneto
L’area del progetto
Parco Clarisse rappresenta un esempio di architettura della città in cui residenza, parchi, spazi pubblici e funzioni commerciali o direzionali si fondono in un disegno di qualità. La ristrutturazione del convento permette la riapertura alla comunità di importanti spazi pubblici quali il parco, la corte e il fronte mura. Questi aree pedonali ospiteranno negozi e residenze coniugando la fruizione pubblica e la destinazione privata, offrendo importanti servizi per la residenza e il presidio degli ambienti pubblici. Tali spazi rappresentano un importante biglietto da visita per le residenze che si svilupperanno ai piani superiori e verso il parco, con il quale entrano in contatto sia visivamente che in senso fisico.
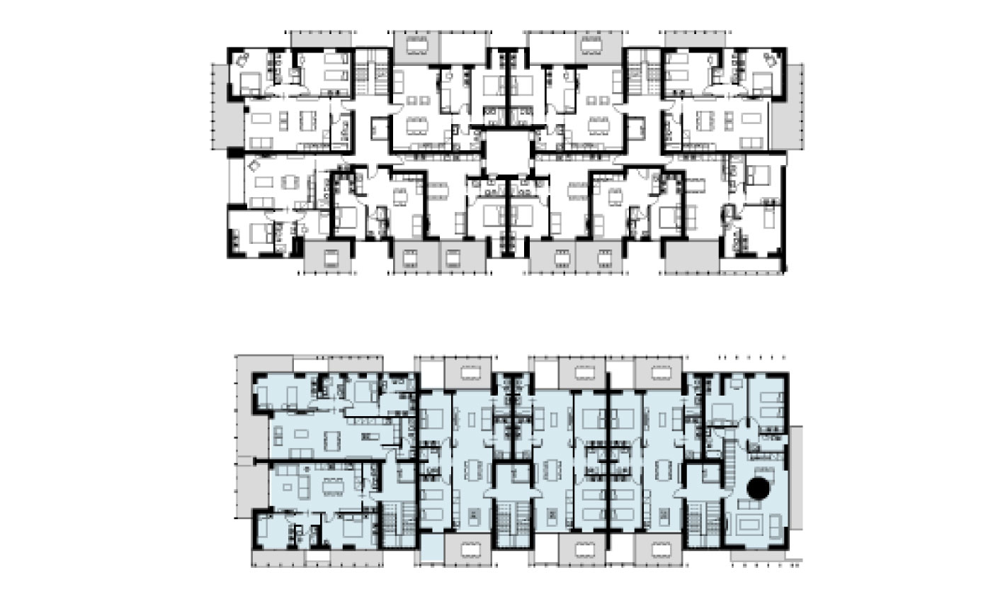
Unità abitativa modulare Brolo Nord
Superficie appartamento
90 mq
Superficie terrazzo
14 mq
Le residenze dell’ala nord sono pensate per una possibile trasformazione nel tempo degli alloggi, al fine di incontrare al meglio le esigenze degli utenti di Parco Clarisse. Lo studio delle unità permette di offrire soluzioni ad una camera che possono essere accorpate tra di loro per avere appartamenti con due o più camere e zone giorno più generose o, al contrario, essere frazionati nel tempo per meglio assecondare le mutate scelte dell’acquirente.
Si possono ottenere quindi alloggi passanti o importanti soluzioni d’angolo che massimizzano la qualità degli affacci sul parco, sulle mura o sulla città. Gli alloggi, anche quelli con una camera, sono sempre dotati di uno o più terrazzi abitabili per garantire, assieme alle tecnologie costruttive adottate e il contesto prestigioso, la massima qualità abitativa.
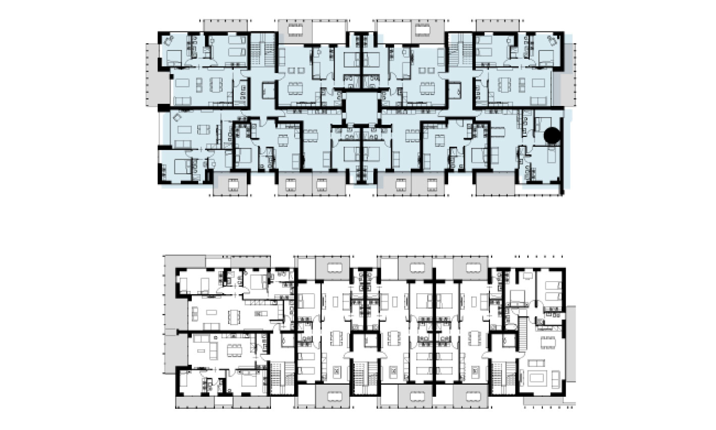
Unità abitative passanti Brolo Sud
Superficie appartamento
109 mq
Superficie terrazzo
13mq + 13 mq
Le residenze poste a sud offrono la possibilità di organizzare la zona giorno di 45 metri quadri, in un ambiente passante che collega soggiorno, pranzo e cucina con i terrazzi a nord e a sud. Tale ambiente può essere aperto creando un unico spazio di 70 metri quadri, con zone giorno affacciate su entrambe i fronti che massimizzano la qualità delle vedute sul parco, la città storica e il paesaggio pedemontano, oltre che la migliore esposizione solare.
Lo stesso alloggio può essere pensato con soluzioni organizzate, le zone giorno a sud e le zone notte a nord o viceversa, a seconda dei fronti di cui si privilegia la godibilità. Le soluzioni di testa offrono inoltre, affacci sul parco monumentale verso ovest o le mura verso est. Sono possibili soluzioni con due o tre camere, modificando l’alloggio nel tempo in funzione alle nuove esigenze abitative. Al piano terra sono presenti soluzioni con giardino esclusivo su entrambe i fronti dell’alloggio.
Box Auto
Le unità della sezione Natura prevedono la disponibilità di box su piano interrato ad utilizzo garage o box auto. L'area prevede struttura singole o doppie a seconda delle necessità, con comodo area di manova in ingresso / uscita, ed accesso carrabile di utilizzo.
Ogni informazione ed ogni descrizione è puramente indicativa, non vincolante e suscettibile di variazione e non ha alcun riferimento all’immobile che sarà oggetto dell’eventuale compravendita tra le parti , essendo stabilito che tanto per le finiture che per i materiali utilizzati, e comunque per qualsiasi altra caratteristica del bene, si dovrà fare riferimento al capitolato tecnico allegato al preliminare di vendita. Parte venditrice, fatti salvi gli obblighi assunti con il preliminare e relativo capitolato, si riserva la facoltà di apportare qualsiasi modifica all’immobile proposto restando inteso che quanto descritto nella presente brochure non ha natura vincolante ma puramente descrittiva a livello pubblicitario.
Ogni riproduzione, totale o parziale del testo, delle immagini (dinamiche e statiche) oltre ai video è vietata se non espressamente accordata in forma scritta da Parco Clarisse srl. Ogni violazione verrà perseguita a norma della legge italiana.
