Unità Abitative nella Storia
Scopri la bellezza di Parco Clarisse, un residence di prestigio nel centro di Castelfranco Veneto
L’area del progetto
Parco Clarisse rappresenta un esempio di architettura della città in cui residenza, parchi, spazi pubblici e funzioni commerciali o direzionali si fondono in un disegno di qualità. La ristrutturazione del convento permette la riapertura alla comunità di importanti spazi pubblici quali il parco, la corte e il fronte mura. Questi aree pedonali ospiteranno negozi e residenze coniugando la fruizione pubblica e la destinazione privata, offrendo importanti servizi per la residenza e il presidio degli ambienti pubblici. Tali spazi rappresentano un importante biglietto da visita per le residenze che si svilupperanno ai piani superiori e verso il parco, con il quale entrano in contatto sia visivamente che in senso fisico.
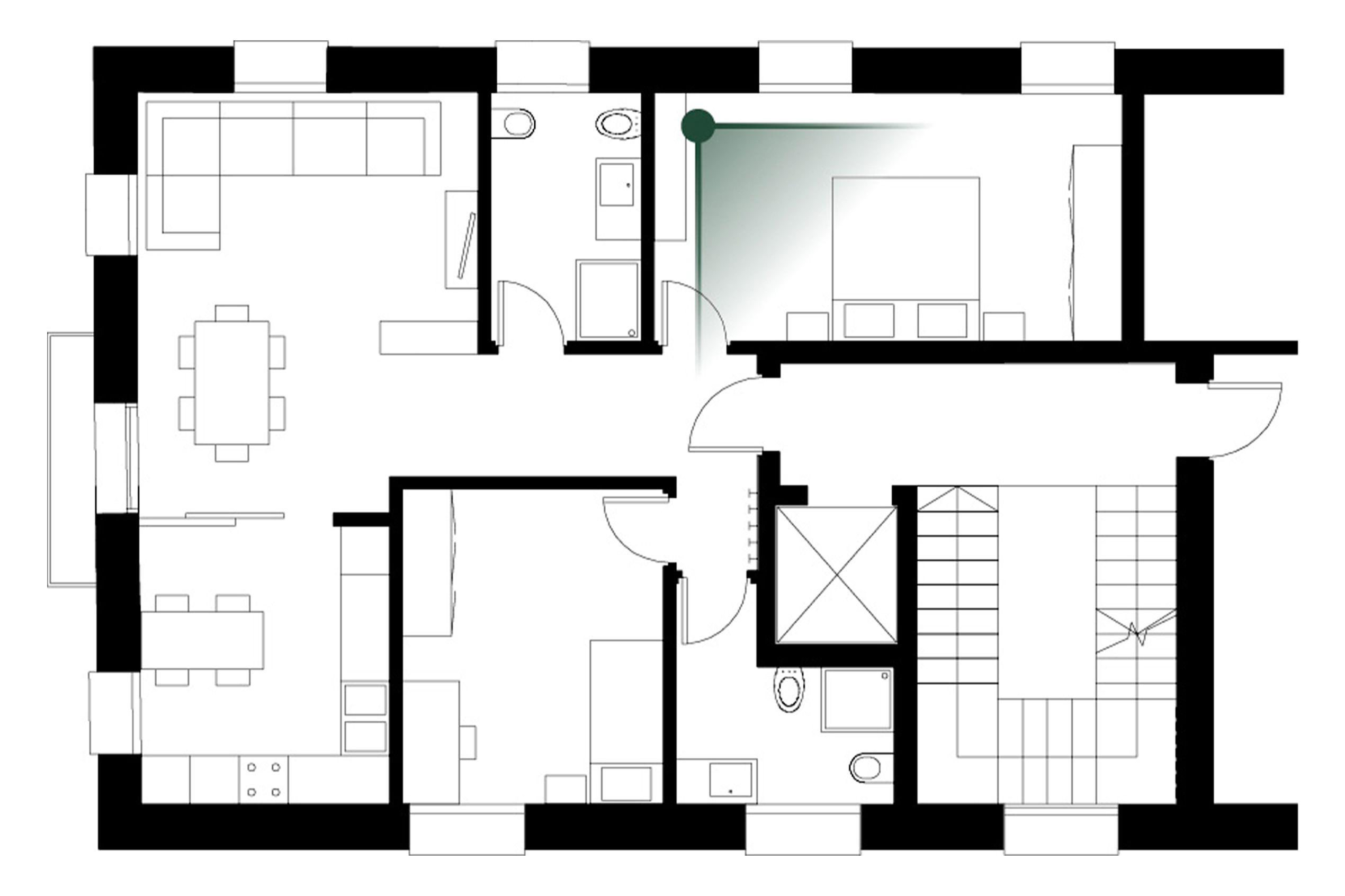
Unità abitative “Corte del Gastaldo”
Superficie appartamento
100.9 mq
Superficie terrazzo
1.8 mq
L’intervento coniuga il fascino delle residenze storiche con i benefici della tecnologia moderna. Le soluzioni studiate mirano a valorizzare gli affacci verso le mura o verso il parco e a portare in luce le preesistenze storiche, che sono state rinvenute durante la ristrutturazione del convento (travature in legno, modanature in pietra, affreschi, colonne e architravi). L’accesso alle residenze avviene attraverso le scalinate originali, che sono state restaurate e integrate delle necessarie dotazioni impiantistiche (illuminazione e ascensori). La particolarità degli spazi e delle forometrie esistenti, ha permesso di dotare le residenze di importanti affacci a beneficio dell’illuminazione e della godibilità delle zone giorno. Buona parte delle residenze dispone di terrazzi esclusivi. Dal punto di vista impiantistico ed energetico le residenze raggiungono una classe energetica A2, grazie all’intervento sull’involucro edilizio e alla particolare soluzione impiantistica adottata.
Unità abitative “Corte del Pozzo”
Superficie appartamento
75.8 mq
Superficie terrazzo
19.0 mq
L’intervento coniuga il fascino delle residenze storiche con i benefici della tecnologia moderna. Le soluzioni studiate mirano a valorizzare gli affacci verso le mura o verso il parco e a portare in luce le preesistenze storiche, che sono state rinvenute durante la ristrutturazione del convento (travature in legno, modanature in pietra, affreschi, colonne e architravi). L’accesso alle residenze avviene attraverso le scalinate originali, che sono state restaurate e integrate delle necessarie dotazioni impiantistiche (illuminazione e ascensori). La particolarità degli spazi e delle forometrie esistenti, ha permesso di dotare le residenze di importanti affacci a beneficio dell’illuminazione e della godibilità delle zone giorno. Buona parte delle residenze dispone di terrazzi esclusivi. Dal punto di vista impiantistico ed energetico le residenze raggiungono una classe energetica A2, grazie all’intervento sull’involucro edilizio e alla particolare soluzione impiantistica adottata.
Unità abitative “Il Convento”
Superficie appartamento
85.7 mq
Superficie terrazzo
1.4 mq
L’intervento coniuga il fascino delle residenze storiche con i benefici della tecnologia moderna. Le soluzioni studiate mirano a valorizzare gli affacci verso le mura o verso il parco e a portare in luce le preesistenze storiche, che sono state rinvenute durante la ristrutturazione del convento (travature in legno, modanature in pietra, affreschi, colonne e architravi). L’accesso alle residenze avviene attraverso le scalinate originali, che sono state restaurate e integrate delle necessarie dotazioni impiantistiche (illuminazione e ascensori). La particolarità degli spazi e delle forometrie esistenti, ha permesso di dotare le residenze di importanti affacci a beneficio dell’illuminazione e della godibilità delle zone giorno. Buona parte delle residenze dispone di terrazzi esclusivi. Dal punto di vista impiantistico ed energetico le residenze raggiungono una classe energetica A2, grazie all’intervento sull’involucro edilizio e alla particolare soluzione impiantistica adottata.
Unità abitative “Duplex” delle Corti
Superficie appartamento
164.7 mq
Superficie terrazzo
35.1 mq
Nell’ala ricostruita vengono ricavate residenze che massimizzano i plus delle residenze storiche, espressi in termini di affacci e di qualità degli spazi di ingresso, con i benefici delle forme del vivere contemporaneo. In particolare, tutti gli alloggi dispongono di terrazzi abitabili affacciati verso le mura e di zone giorno ad open space con doppio affaccio su fronti opposti (mura e parco).
Le soluzioni abitative studiate, offrono la possibilità di integrare più alloggi potendo realizzare soluzioni in duplex oppure prevedere soluzioni indipendenti su piani diversi. La qualità degli affacci, il comfort indoor e l’organizzazione degli spazi offrono la possibilità di avere alloggi dotati degli standard d’uso contemporanei immersi nel cuore della città storica.
Le aperture a doppia anta scorrevole verso i terrazzi collegano questi alle zone giorno, integrando gli spazi esterni con quelli interni. Le soluzioni impiantistiche minimizzano la componente condominiale a favore di un utilizzo autonomo dei dispositivi.
Ogni informazione ed ogni descrizione è puramente indicativa, non vincolante e suscettibile di variazione e non ha alcun riferimento all’immobile che sarà oggetto dell’eventuale compravendita tra le parti , essendo stabilito che tanto per le finiture che per i materiali utilizzati, e comunque per qualsiasi altra caratteristica del bene, si dovrà fare riferimento al capitolato tecnico allegato al preliminare di vendita. Parte venditrice, fatti salvi gli obblighi assunti con il preliminare e relativo capitolato, si riserva la facoltà di apportare qualsiasi modifica all’immobile proposto restando inteso che quanto descritto nella presente brochure non ha natura vincolante ma puramente descrittiva a livello pubblicitario.
Ogni riproduzione, totale o parziale del testo, delle immagini (dinamiche e statiche) oltre ai video è vietata se non espressamente accordata in forma scritta da Parco Clarisse srl. Ogni violazione verrà perseguita a norma della legge italiana.
